El Proyecto de Desarrollo Social San Felipe nos estamos actualizando y adaptando a las nuevas tecnologías.
Por este motivo hemos dado una nueva cara al blog y estamos en proceso de creación de una página web con muchas novedades. El blog ya está disponible para dispositivos móviles, y también lo estará la web.
Además, ya somos miembros de Facebook.
Únete a nuestra red de amigos y sigue las novedades.
PROYECTO DE DESARROLLO SOCIAL SAN FELIPE
viernes, 25 de noviembre de 2011
miércoles, 16 de noviembre de 2011
Una excelente noticia: propuesta de ampliación!!
En la actualidad, la Guardería P. El Almendro brinda sus servicios de atención integral a niños y niñas de 1 a 5 años de edad.
A lo largo de sus trece años de historia ha crecido, paso a paso, aumentando la cobertura hasta llegar al límite de su capacidad, atendiendo en la actualidad a 200 niños y niñas de nuestras comunidades.
Cuenta hoy con una lista de espera de casi igual número de niños y niñas que esperan una oportunidad para acceder a sus aulas.
Así mismo, la Guardería P. El Almendro ha desarrollado diferentes programas de salud, educativos y sociales que le imprimen nuevos valores añadidos y complejidad al Proyecto.Esto nos ayudó a definir la necesidad de una ampliación y a su vez una propuesta que se traza como objetivos aumentar la cobertura en un 40 % de los cupos disponibles y construir y mejorar algunas areas que son deficitarias en la actualidad.
En este tenor, el pasado mes de marzo, la Guarderia, con el apoyo del Ayuntamiento Santo Domingo Norte, adquirió 600 metros cuadrados adyacentes a la propiedad actual e inició el proceso de elaboración de la propuesta.
En una reunión, de todo el personal, llena de emoción y sueños, cada equipo reflexionó y expresó las necesidades y deseos para una posible ampliación.
El dia siete de abril de este año, mediante la resolución nº264-06 el Consejo Nacional de la Seguridad Social, a petición de la Administradora Estancias Infantiles Salud Segura (AEISS), aprobó la inclusión de la Guardería El Almendro en el "Proyecto XII", lo cual supone el financiamiento de la primera fase de nuestra propuesta de remodelación y ampliación.
De forma desinteresada y solidaria los arquitectos Artur Bossy y Xiomara Germán, presentaron una bella propuesta arquitectónica en la que priman criterios de funcionalidad, estética acorde con el entorno, seguridad y una excelente relación entre calidad y bajo costo de construcción.
(no dejes de visitar esta publicación y el sitio web y pasearte un poquito por él; tendrás el privilegio de asomarte a un mundo de belleza, creatividad y buen gusto).
Compartimos contigo una parte del anteproyecto y una visión virtual del posible resultado.
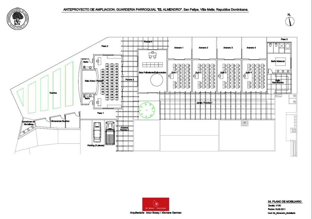
La propuesta consiste básicamente en la construcción de cuatro aulas, una aula de estimulación oportuna, una oficina de psicología, un salón multiusos para la escuela de padres y otras actividades, un huerto, una extensa área de patios cubierta y la remodelación y ampliación del área de baños.
En la actualidad estamos en la elaboración del proyecto ejecutivo y la contratación de la construcción de la primera fase y por supuesto empieza un formidable reto para todo el equipo para conseguir el financiamiento de las fases siguientes.
Con esta publicación queremos compartir con todos nuestros amigos la buena noticia, el reto de futuro que supone para llevarla a cabo y, sobretodo, dar las gracias a todos los que están posibilitando que se convierta en realidad.
Seguiremos hablando de este tema...
sábado, 12 de noviembre de 2011
Se acerca la Navidad...nuestros envejecientes están "a'lante, a'lante!"
Una vez más se acerca la Navidad!!!
Los primeros en preparar la decoración y la fiesta fueron los miembros del Club de Envejecientes Nueva Esperanza (CENE).
El miércoles pasado, en su reunión habitual, participaron en un taller de elaboración de decoraciones Navideñas.

Bajo la dirección de Virginia y su hijo de Canaán, quienes servicialmente se brindaron a facilitar el taller y, con la ayuda de algunas personas de la Guardería, cada asistente pudo elaborar y llevarse a su hogar alguna producción decorativa para recibir la Navidad.
Realizaron un excelente trabajo en un ambiente festivo y amigable.








Los envejecientes del CENE están "a'lante, a'lante!!!!!"
El miércoles pasado, en su reunión habitual, participaron en un taller de elaboración de decoraciones Navideñas.
Realizaron un excelente trabajo en un ambiente festivo y amigable.
Suscribirse a:
Comentarios (Atom)

